Trilocale in vendita

Palermo, Via Elia Augusto - Policlinico
€ 130.000
3 locali 3 locali
100 Mq 100 Mq
1 bagno 1 bagno

Trilocale in vendita

Palermo, Via Elia Augusto - Policlinico

Descrizione annuncio

Via Augusto Elia.

A meno di 800 mt dai poli ospedalieri e dalla stazione centrale, in zona ben collegata dai mezzi di trasporto pubblici, quali autobus e stazione metro, e fornita di innumerevoli servizi quali scuole, farmacie, supermercati (Carrefour) e piccoli commercianti, utili al vivere quotidiano.

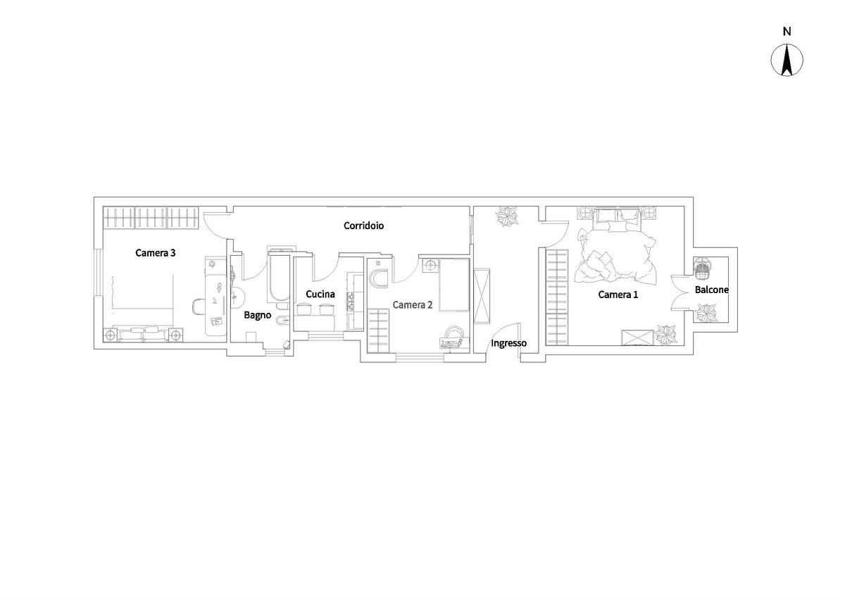
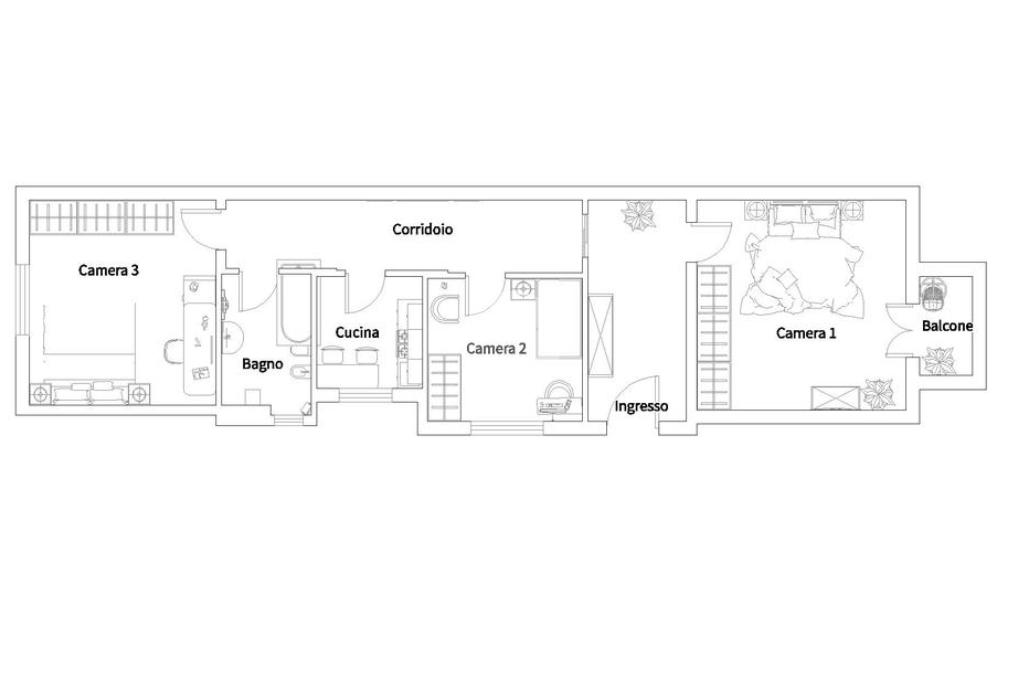
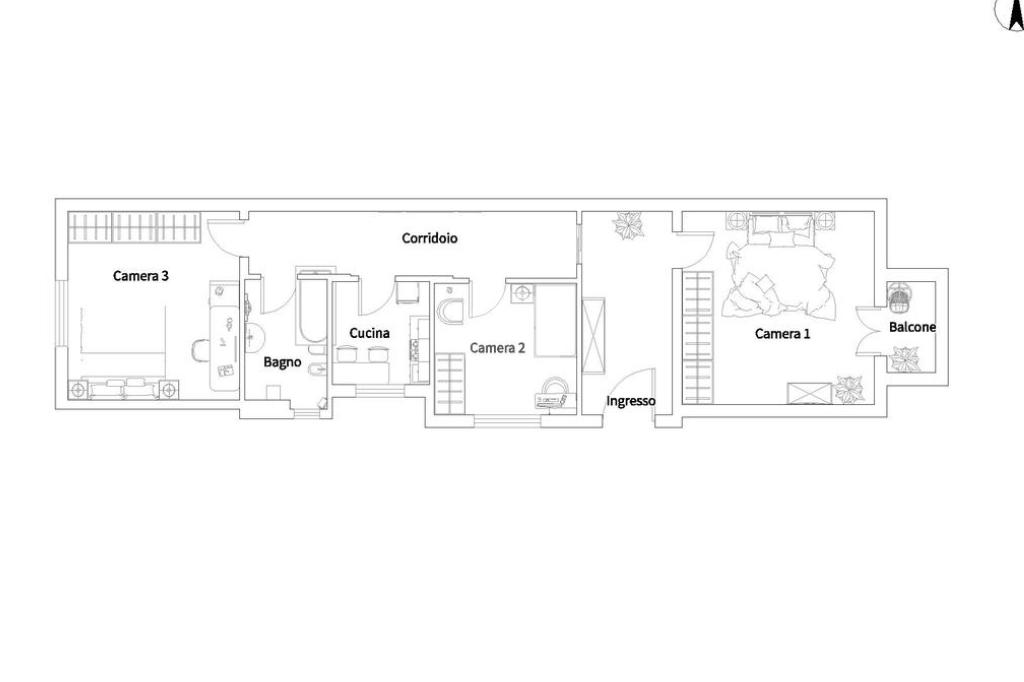
Nel cuore del quartiere Policlinico a Palermo, si propone in vendita un appartamento di 100 mq situato al secondo piano di un edificio costruito nel 1950 di quattro elevazioni fuori terra; presenta il prospetto in ottimo stato e spese condominiali modiche. L'immobile è composto da tre camere da letto di conformazione regolare, che offrono facilità di arredo e ottimizzazione degli spazi.

La cucina semi - abitabile ha la finestra e può ospitare tre persone durante i pasti, il servizio ha la vasca da bagno.

Si presenta in buone condizioni complessive conservando le rifiniture dell'epoca di costruzione.

Attualmente locato a studenti, l'immobile genera una rendita annua di 7.920 euro, rappresentando un'opportunità interessante per chi cerca un investimento immediato, sicuro e redditizio.

La posizione strategica nel quartiere Policlinico offre facile accesso a servizi essenziali e mezzi di trasporto, rendendo questa proprietà una scelta ideale per chi desidera vivere o investire in una zona ben servita di Palermo.

Per poter visionare l'immobile è possibile previo appuntamento telefonico allo 091.773.28.35.

Se vuoi ricevere maggiori informazioni e fissare un appuntamento, invia direttamente un messaggio su Whatsapp al seguente recapito: 327.891.55.61.

La nostra agenzia offre il servizio di mediazione creditizia attraverso Kìron qualora per l'acquisto doveste accedere ad un mutuo, un prestito od una cessione del quinto possiamo svolgere una consulenza in forma gratuita attraverso professionista del settore la quale dispone di oltre 20 istituti bancari sia locali che nazionali

Mostra tutto

Nelle vicinanze

Trasporto pubblico Trasporto pubblico
Palermo Centrale
Palermo Centrale
540 m
Palazzo Reale - Orleans
Palazzo Reale - Orleans
990 m
Stazione Centrale
Stazione Centrale
650 m
Ingrassia
Ingrassia
690 m
La Franca - Durante
La Franca - Durante
170 m
Ricariche auto elettriche Ricariche auto elettriche
IONITY Basile Palermo
1,7 Km
T.F. Car Service Palermo | EnelX
3,0 Km
Scuole Scuole
Rosolino Pilo
190 m
Aula Maurizio Ascoli
230 m
Aula Enzo Nesci
300 m
Istituto di Medicina Legale e delle Assicurazioni
330 m
Istituto di Scienze Farmacologiche
340 m
Farmacia Farmacia
Farmacia
430 m
Roma
690 m
Farmacia
770 m
Farmacia Gallo
860 m
Dott. Mancino
1,0 Km
Ospedali Ospedali
Azienda Ospedaliera Universitaria Policlinico "Paolo Giaccone"
290 m
Policlinico (Nuove aule)
420 m
Ospedale Civico e Benefratelli "G. Di Cristina" e "M. Ascoli"
570 m
Ospedale dei bambini "Giovanni Di Cristina"
870 m
Ospedale Guadagna
1,1 Km
Supermercati Supermercati
Conad
860 m
Lidl
900 m
Mini Market
930 m
Carrefour
1,4 Km
Supermercato 3C
1,4 Km
Negozi Negozi
Panificio Figli Fiorentino
130 m
Negozi
600 m
Intimo e Corredo di Tiziana Quattrocchi
750 m
Angolo del Pane
810 m
Dolci Tentazioni
840 m
Bar Bar
Willy
440 m
la Cueva
900 m
Massaro
920 m
Moltivolti
970 m
Old School
1,0 Km
Ristoranti Ristoranti
Mensa
460 m
Al Vecchio Ristoro del Corso
770 m
Da carlo
770 m
Al Fondaco del Conte
930 m
La Locanda
960 m
Mostra tutto

Caratteristiche

Rif.:
61145007
Piano:
2 di 4 (Piano medio)
Balconi:
1
Camere da letto:
3
Arredamento:
Assente
Condizionamento:
Autonomo
Mostra tutto
Prezzo Prezzo
€ 130.000
Rata mutuo Rata mutuo
€ 614 / mese
Spese annue Spese annue
€ 250
Proponi il tuo prezzoProponi il tuo prezzo

Classe Energetica

G
G
G
G
G
G
G
G
G
EP globale non rinnovabile:
150.00 kW h/m² anno
EP globale rinnovabile:
175.00 kW h/m² anno
EP invernale del fabbricato:
EP estiva del fabbricato:
Anno di costruzione:
1950
Riscaldamento:
Autonomo
Tipo impianto:
A radiatori
Tipo alimentazione:
Metano

Ti interessa visionare l'immobile?

Fissa un appuntamento  Fissa un appuntamento

Richiedi informazioni

Clicca su Leggi per aprire l'informativa
* Questi campi sono obbligatori

Calcola il tuo mutuo

Semplice e senza impegno
Anticipo

( % )
Mutuo

( % )

pochi semplici passi

inserisci i tuoi dati
Questionario completato
Grazie per aver richiesto un appuntamento senza impegno con un nostro Consulente del Credito e Assicurativo.

Hai inserito correttamente tutti i dati necessari e a breve riceverai una e-mail con un link da convalidare per inviare i tuoi dati.
Affiliato
Oreto Policlinico Sas
Via Mendola, 41 90134 Palermo (PA)

Il nostro staff


  • Antonina Baglione
    Coordinatrice

  • Giuseppe Di Pisa
    Collaboratore

  • Gianluca Drago
    Collaboratore

  • Alex Amato
    Affiliato

  • Vincenzo Nicosia
    Collaboratore
Via Mendola, 41 90134 Palermo (PA)
Zona: Oreto-Policlinico-Bergamo-Perez-Sebastiano La Franca
Mostra su mappa
Affiliato
Oreto Policlinico Sas
Via Mendola, 41 90134 Palermo (PA)

2025 Tecnocasa Franchising S.p.A. - P. IVA 08365160152 - Via Monte Bianco 60/A 20089 Rozzano (MI). Ogni agenzia ha un proprio titolare ed è autonoma. Privacy policy | Policy utilizzo | Cookie policy