Quadrilocale in vendita

Palermo, Via rocco jemma - Policlinico
€ 145.000
3 locali 3 locali
100 Mq 100 Mq
1 bagno 1 bagno

Quadrilocale in vendita

Palermo, Via rocco jemma - Policlinico

Descrizione annuncio

Via Rocco Jemma.

A meno di 300 metri dal Polo Ospedaliero Policlinico 'Paolo Giaccone', in contesto residenziale.

L'edificio è stato costruito nel 1960 e consta di nove elevazioni complessive fuori terra. In contesto residenziale con parti condominiali curate, in assenza di barriere architettoniche ove le spese condominiali risultano essere contenute.

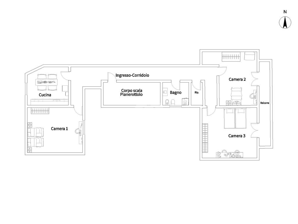
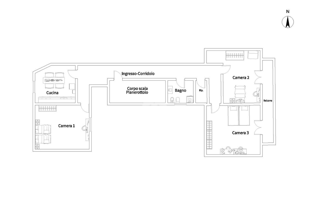
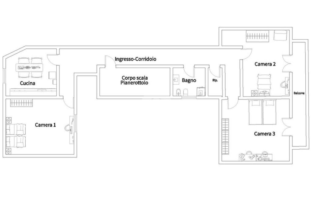
L’immobile si distingue per la funzionale distribuzione degli spazi.
Sono presenti tre camere da letto matrimoniali luminose e ariose, pensate per offrire un ambiente confortevole; la cucina è di comode dimensioni e può ospitare serenamente quattro persone durante i pasti.

Completano la proprietà il bagno con doccia ed un comodo ripostiglio.

L'immobile verte in buone condizioni con infissi in alluminio; gli impianti sono stati rivisiti nel tempo e conserva la pavimentazione dell'epoca di costruzione.

La posizione strategica, a pochi passi dal Polo ospedaliero, rende questa soluzione particolarmente interessante per chi cerca un investimento sicuro e redditizio; produce una rendita annua immediata di Euro 7.920,00.

Per poter visionare l'immobile è possibile previo appuntamento telefonico allo 091.773.28.35.

Se vuoi ricevere maggiori informazioni e fissare un appuntamento, invia direttamente un messaggio su Whatsapp al seguente recapito: 327.891.55.61.

La nostra agenzia offre il servizio di mediazione creditizia attraverso Kìron qualora per l'acquisto doveste accedere ad un mutuo, un prestito od una cessione del quinto possiamo svolgere una consulenza in forma gratuita attraverso professionista del settore la quale dispone di oltre 20 istituti bancari sia locali che nazionali

Mostra tutto

Nelle vicinanze

Trasporto pubblico Trasporto pubblico
Palermo Centrale
Palermo Centrale
620 m
Palazzo Reale - Orleans
Palazzo Reale - Orleans
1,0 Km
Stazione Centrale
Stazione Centrale
730 m
Ingrassia
Ingrassia
760 m
La Franca - Durante
La Franca - Durante
90 m
Ricariche auto elettriche Ricariche auto elettriche
IONITY Basile Palermo
1,6 Km
T.F. Car Service Palermo | EnelX
2,9 Km
Scuole Scuole
Rosolino Pilo
120 m
Aula Maurizio Ascoli
180 m
Aula Enzo Nesci
230 m
Istituto di Medicina Legale e delle Assicurazioni
270 m
Istituto di Scienze Farmacologiche
290 m
Farmacia Farmacia
Farmacia
380 m
Roma
770 m
Farmacia Gallo
810 m
Farmacia
850 m
Dott. Mancino
970 m
Ospedali Ospedali
Azienda Ospedaliera Universitaria Policlinico "Paolo Giaccone"
260 m
Policlinico (Nuove aule)
350 m
Ospedale Civico e Benefratelli "G. Di Cristina" e "M. Ascoli"
520 m
Ospedale dei bambini "Giovanni Di Cristina"
890 m
Ospedale Guadagna
1,0 Km
Supermercati Supermercati
Conad
940 m
Lidl
980 m
Mini Market
1,0 Km
Coop
1,3 Km
SISA supermercato
1,3 Km
Negozi Negozi
Panificio Figli Fiorentino
70 m
Negozi
680 m
Angolo del Pane
770 m
Dolci Tentazioni
820 m
Intimo e Corredo di Tiziana Quattrocchi
820 m
Bar Bar
Willy
360 m
Massaro
910 m
la Cueva
940 m
Moltivolti
1,0 Km
Tatum Art Jazz Club
1,1 Km
Ristoranti Ristoranti
Mensa
420 m
Da carlo
830 m
Al Vecchio Ristoro del Corso
850 m
Al Fondaco del Conte
990 m
La Locanda
1,0 Km
Mostra tutto

Caratteristiche

Rif.:
61142490
Piano:
8 di 9 con ascensore (Piano alto)
Balconi:
1
Camere da letto:
3
Arredamento:
Assente
Condizionamento:
Autonomo
Mostra tutto
Prezzo Prezzo
€ 145.000
Rata mutuo Rata mutuo
€ 684 / mese
Spese annue Spese annue
€ 480
Proponi il tuo prezzoProponi il tuo prezzo

Classe Energetica

G
G
G
G
G
G
G
G
G
EP globale non rinnovabile:
150.00 kW h/m² anno
EP globale rinnovabile:
175.00 kW h/m² anno
EP invernale del fabbricato:
EP estiva del fabbricato:
Anno di costruzione:
1960
Riscaldamento:
Autonomo
Tipo impianto:
A radiatori
Tipo alimentazione:
Metano

Ti interessa visionare l'immobile?

Fissa un appuntamento  Fissa un appuntamento

Richiedi informazioni

Clicca su Leggi per aprire l'informativa
* Questi campi sono obbligatori

Calcola il tuo mutuo

Semplice e senza impegno
Anticipo

( % )
Mutuo

( % )

pochi semplici passi

inserisci i tuoi dati
Questionario completato
Grazie per aver richiesto un appuntamento senza impegno con un nostro Consulente del Credito e Assicurativo.

Hai inserito correttamente tutti i dati necessari e a breve riceverai una e-mail con un link da convalidare per inviare i tuoi dati.
Affiliato
Oreto Policlinico Sas
Via Mendola, 41 90134 Palermo (PA)

Il nostro staff


  • Antonina Baglione
    Coordinatrice

  • Giuseppe Di Pisa
    Collaboratore

  • Gianluca Drago
    Collaboratore

  • Alex Amato
    Affiliato

  • Vincenzo Nicosia
    Collaboratore
Via Mendola, 41 90134 Palermo (PA)
Zona: Oreto-Policlinico-Bergamo-Perez-Sebastiano La Franca
Mostra su mappa
Affiliato
Oreto Policlinico Sas
Via Mendola, 41 90134 Palermo (PA)

2025 Tecnocasa Franchising S.p.A. - P. IVA 08365160152 - Via Monte Bianco 60/A 20089 Rozzano (MI). Ogni agenzia ha un proprio titolare ed è autonoma. Privacy policy | Policy utilizzo | Cookie policy