Trilocale in vendita

Palermo, Via Bergamo - Policlinico
€ 140.000
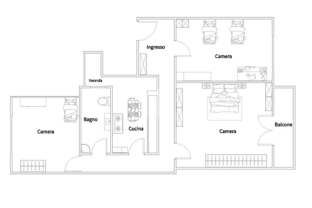
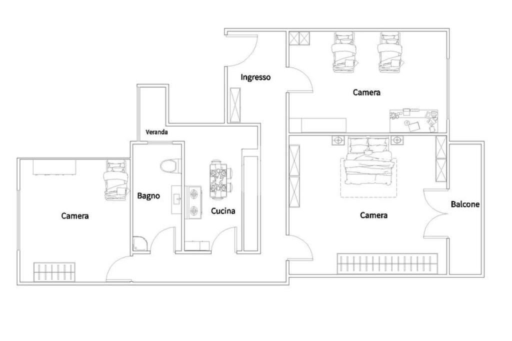
3 locali 3 locali
110 Mq 110 Mq
1 bagno 1 bagno

Trilocale in vendita

Palermo, Via Bergamo - Policlinico

Descrizione annuncio

Via Bergamo.

A 500 mt dall'ospedale Policlinico 'P. Giaccone', quartiere in cui vi sono presenti diverse tipologie di attività commerciali volte a soddisfare qualsivoglia esigenza utile al vivere quotidiano, come supermercati, bar e tabacchi, farmacie, pizzerie e ristoranti, istituti primari e secondari.

La costruzione dell'edificio risalente agli anni '60, consta di sette elevazioni complessive; E' dotato di ascensore e servizio di sorveglianza.

Il condominio si presenta con prospetto e parti condominiali curate; in assenza del servizio di portierato le spese condominiali risultano essere contenute e ammontano a circa 40,00 euro mensili.

La comoda metratura risulta ben organizzata; Sono presenti tre camere da letto di comode dimensioni e di facile arredo.

La cucina è collegata alla veranda e dispone di un funzionale armadio a muro.

Completa la proprietà il bagno con finestra e dispone di piatto doccia con box moderno.

Il piano alto e la doppia esposizione favoriscono la luminosità dell'immobile.

Lo stato interno è in buone condizioni complessive conservando le rifiniture dell'epoca di costruzione.

L'immobile si presta per uso investimento data la sua ubicazione; Attualmente, l'immobile genera una rendita annua di 5.760,00 euro, grazie a un contratto di locazione valido fino a Novembre 2026, rappresentando un'opportunità interessante per chi cerca un investimento solido.

Per poter visionare l'immobile è possibile tutti i giorni previo appuntamento telefonico allo 091.773.28.35 salvo diversi avvisi e comunicazioni:

Dal Lunedì al Venerdì con orario continuato dalle 09:00 alle 13:00 e dalle 16:00 alle 20:00 ed Il sabato dalle 09:00 alle 13:00.

Se vuoi ricevere maggiori informazioni e fissare un appuntamento, invia direttamente un messaggio su Whatsapp al seguente recapito: 327.891.55.61.

La nostra agenzia offre il servizio di mediazione creditizia attraverso Kìron qualora per l'acquisto doveste accedere ad un mutuo, un prestito od una cessione del quinto possiamo svolgere una consulenza in forma gratuita attraverso professionista del settore la quale dispone di oltre 20 istituti bancari sia locali che nazionali

Mostra tutto

Nelle vicinanze

Trasporto pubblico Trasporto pubblico
Palermo Centrale
Palermo Centrale
680 m
Palazzo Reale - Orleans
Palazzo Reale - Orleans
1,3 Km
Tiro a Segno
Tiro a Segno
650 m
Ingrassia
Ingrassia
680 m
Jemma
Jemma
190 m
Ricariche auto elettriche Ricariche auto elettriche
IONITY Basile Palermo
1,9 Km
T.F. Car Service Palermo | EnelX
2,6 Km
Scuole Scuole
Rosolino Pilo
240 m
Scuola Elementare Guglielmo Oberdan
400 m
Aula Enzo Nesci
460 m
Aula Maurizio Ascoli
470 m
Istituto di Medicina Legale e delle Assicurazioni
530 m
Farmacia Farmacia
Farmacia
650 m
Roma
870 m
Farmacia
910 m
Parafarmacia Conad
950 m
Farmacia Gallo
1,1 Km
Ospedali Ospedali
Azienda Ospedaliera Universitaria Policlinico "Paolo Giaccone"
550 m
Policlinico (Nuove aule)
560 m
Ospedale Civico e Benefratelli "G. Di Cristina" e "M. Ascoli"
780 m
Ospedale Guadagna
890 m
Ospedale dei bambini "Giovanni Di Cristina"
1,2 Km
Supermercati Supermercati
Conad
900 m
Lidl
1,1 Km
Mini Market
1,2 Km
SISA supermercato
1,2 Km
Coop
1,2 Km
Negozi Negozi
Panificio Figli Fiorentino
250 m
Angolo del Pane
480 m
Intimo e Corredo di Tiziana Quattrocchi
820 m
Negozi
850 m
Dolci Tentazioni
1,1 Km
Bar Bar
Willy
520 m
Massaro
1,2 Km
la Cueva
1,2 Km
Qvivi
1,2 Km
Old School
1,3 Km
Ristoranti Ristoranti
Mensa
710 m
Al Vecchio Ristoro del Corso
900 m
Da carlo
1,1 Km
I Picciotti
1,1 Km
La Locanda
1,2 Km
Mostra tutto

Caratteristiche

Rif.:
61132018
Piano:
6 di 7 con ascensore (Piano medio)
Balconi:
2
Camere da letto:
3
Arredamento:
Assente
Condizionamento:
Autonomo
Mostra tutto
Prezzo Prezzo
€ 140.000
Rata mutuo Rata mutuo
€ 663 / mese
Spese annue Spese annue
€ 360
Proponi il tuo prezzoProponi il tuo prezzo

Classe Energetica

G
G
G
G
G
G
G
G
G
EP globale non rinnovabile:
150.00 kW h/m² anno
EP globale rinnovabile:
175.00 kW h/m² anno
EP invernale del fabbricato:
EP estiva del fabbricato:
Anno di costruzione:
1950
Riscaldamento:
Autonomo
Tipo impianto:
A radiatori
Tipo alimentazione:
Metano

Ti interessa visionare l'immobile?

Fissa un appuntamento  Fissa un appuntamento

Richiedi informazioni

Clicca su Leggi per aprire l'informativa
* Questi campi sono obbligatori

Calcola il tuo mutuo

Semplice e senza impegno
Anticipo

( % )
Mutuo

( % )

pochi semplici passi

inserisci i tuoi dati
Questionario completato
Grazie per aver richiesto un appuntamento senza impegno con un nostro Consulente del Credito e Assicurativo.

Hai inserito correttamente tutti i dati necessari e a breve riceverai una e-mail con un link da convalidare per inviare i tuoi dati.
Affiliato
Oreto Policlinico Sas
Via Mendola, 41 90134 Palermo (PA)

Il nostro staff


  • Antonina Baglione
    Coordinatrice

  • Giuseppe Di Pisa
    Collaboratore

  • Gianluca Drago
    Collaboratore

  • Alex Amato
    Affiliato

  • Vincenzo Nicosia
    Collaboratore
Via Mendola, 41 90134 Palermo (PA)
Zona: Oreto-Policlinico-Bergamo-Perez-Sebastiano La Franca
Mostra su mappa
Affiliato
Oreto Policlinico Sas
Via Mendola, 41 90134 Palermo (PA)

2026 Tecnocasa Franchising S.p.A. - P. IVA 08365160152 - Via Monte Bianco 60/A 20089 Rozzano (MI). Ogni agenzia ha un proprio titolare ed è autonoma. Privacy policy | Policy utilizzo | Cookie policy