Quadrilocale in vendita

Palermo, Via Bergamo - Oreto
€ 120.000
4 locali 4 locali
100 Mq 100 Mq
1 bagno 1 bagno

Quadrilocale in vendita

Palermo, Via Bergamo - Oreto

Descrizione annuncio

Via Bergamo.

A 500 mt dall'ospedale Policlinico 'P. Giaccone', quartiere in cui vi sono presenti diverse tipologie di attività commerciali volte a soddisfare qualsivoglia esigenza utile al vivere quotidiano, come supermercati, bar e tabacchi, farmacie, pizzerie e ristoranti, istituti primari e secondari.

La costruzione dello stabile risale agli anni '50, è suddiviso in quattro elevazioni complessive, ove presenta i gradini del corpo scala comodi al di sotto di 15 cm e servizio di videosorveglianza; Le spese condominiali risultano essere contenute, circa 30 euro mensili.

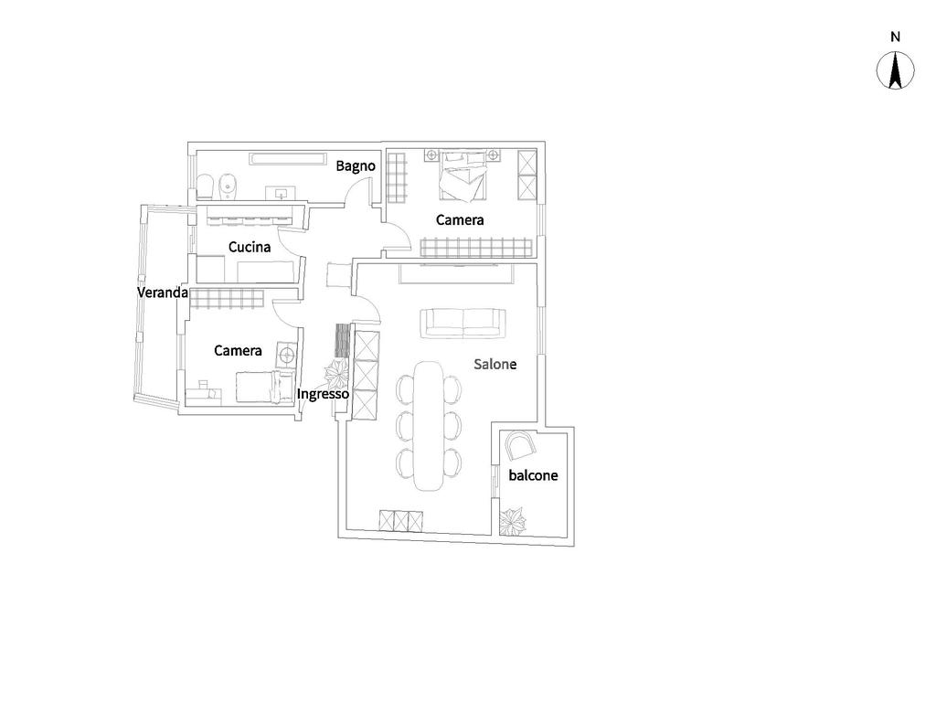
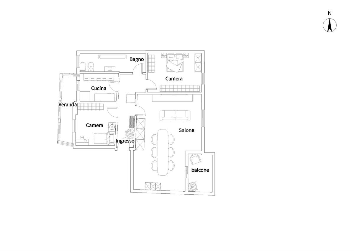
L'immobile si sviluppa in una superficie commerciale di 100 mq ed è ubicato al piano primo.

L'immobile offre ambienti ben disimpegnati che garantiscono una distribuzione funzionale degli spazi; L'ingresso da porta blindata è su spazioso e pratico corridoio che disimpegna ottimamente i vari ambienti.

Il primo vano utile è il salone, facilmente divisibile, con uscita sul balcone con esposizione sulla via principale.

Sono presenti due camere di conformazione regolare e di facile arredo. La cucina semi abitabile ha esposizione sul retroprospetto con veranda.

Completa la proprietà il bagno con finestra e vasca a bagno.

L'immobile offre una doppia esposizione che garantisce luminosità e ventilazione naturale.

Si presenta in buone condizioni complessive con impianti rivisti nel tempo; conserva le rifiniture dell'epoca di costruzione.

L'immobile si presta per uso investimento data la sua ubicazione; Attualmente, l'immobile genera una rendita annua di 4800 euro, grazie a un contratto di locazione valido fino a gennaio 2027, rappresentando un'opportunità interessante per chi cerca un investimento solido.

Per poter visionare l'immobile è possibile tutti i giorni previo appuntamento telefonico allo 091.773.28.35 salvo diversi avvisi e comunicazioni:

Dal Lunedì al Venerdì con orario continuato dalle 09:00 alle 13:00 e dalle 16:00 alle 20:00 ed Il sabato dalle 09:00 alle 13:00.

Se vuoi ricevere maggiori informazioni e fissare un appuntamento, invia direttamente un messaggio su Whatsapp al seguente recapito: 327.891.55.61.

La nostra agenzia offre il servizio di mediazione creditizia attraverso Kìron qualora per l'acquisto doveste accedere ad un mutuo, un prestito od una cessione del quinto possiamo svolgere una consulenza in forma gratuita attraverso professionista del settore la quale dispone di oltre 20 istituti bancari sia locali che nazionali convenzionati.

Mostra tutto

Nelle vicinanze

Trasporto pubblico Trasporto pubblico
Palermo Centrale
Palermo Centrale
660 m
Palazzo Reale - Orleans
Palazzo Reale - Orleans
1,3 Km
Tiro a Segno
Tiro a Segno
650 m
Ingrassia
Ingrassia
670 m
Jemma
Jemma
170 m
Ricariche auto elettriche Ricariche auto elettriche
IONITY Basile Palermo
1,9 Km
T.F. Car Service Palermo | EnelX
2,7 Km
Scuole Scuole
Rosolino Pilo
220 m
Scuola Elementare Guglielmo Oberdan
430 m
Aula Enzo Nesci
440 m
Aula Maurizio Ascoli
450 m
Istituto di Medicina Legale e delle Assicurazioni
510 m
Farmacia Farmacia
Farmacia
630 m
Roma
850 m
Farmacia
890 m
Parafarmacia Conad
960 m
Farmacia Gallo
1,1 Km
Ospedali Ospedali
Azienda Ospedaliera Universitaria Policlinico "Paolo Giaccone"
530 m
Policlinico (Nuove aule)
540 m
Ospedale Civico e Benefratelli "G. Di Cristina" e "M. Ascoli"
770 m
Ospedale Guadagna
910 m
Ospedale dei bambini "Giovanni Di Cristina"
1,2 Km
Supermercati Supermercati
Conad
880 m
Lidl
1,1 Km
Mini Market
1,1 Km
SISA supermercato
1,2 Km
Coop
1,2 Km
Negozi Negozi
Panificio Figli Fiorentino
230 m
Angolo del Pane
510 m
Intimo e Corredo di Tiziana Quattrocchi
800 m
Negozi
830 m
Dolci Tentazioni
1,1 Km
Bar Bar
Willy
510 m
Massaro
1,2 Km
la Cueva
1,2 Km
Qvivi
1,2 Km
Old School
1,2 Km
Ristoranti Ristoranti
Mensa
690 m
Al Vecchio Ristoro del Corso
880 m
Da carlo
1,1 Km
I Picciotti
1,1 Km
La Locanda
1,2 Km
Mostra tutto

Caratteristiche

Rif.:
61128064
Piano:
1 di 4 (Piano basso)
Balconi:
2
Camere da letto:
2
Arredamento:
Assente
Condizionamento:
Autonomo
Mostra tutto
Prezzo Prezzo
€ 120.000
Rata mutuo Rata mutuo
€ 550 / mese
Spese annue Spese annue
€ 360
Proponi il tuo prezzoProponi il tuo prezzo
Immobile valutato con TecnoValore

Classe Energetica

G
G
G
G
G
G
G
G
G
EP globale non rinnovabile:
150.00 kW h/m² anno
EP globale rinnovabile:
175.00 kW h/m² anno
EP invernale del fabbricato:
EP estiva del fabbricato:
Anno di costruzione:
1950
Riscaldamento:
Autonomo
Tipo impianto:
A radiatori
Tipo alimentazione:
Metano

Ti interessa visionare l'immobile?

Fissa un appuntamento  Fissa un appuntamento

Richiedi informazioni

* Questi campi sono obbligatori

Calcola il tuo mutuo

Semplice e senza impegno
Anticipo

( % )
Mutuo

( % )

pochi semplici passi

inserisci i tuoi dati
Questionario completato
Grazie per aver richiesto un appuntamento senza impegno con un nostro Consulente del Credito e Assicurativo.

Hai inserito correttamente tutti i dati necessari e a breve riceverai una e-mail con un link da convalidare per inviare i tuoi dati.
Affiliato
Oreto Policlinico Sas
Via Mendola, 41 90134 Palermo (PA)

Il nostro staff


  • Antonina Baglione
    Coordinatrice

  • Giuseppe Di Pisa
    Collaboratore

  • Gianluca Drago
    Collaboratore

  • Alex Amato
    Affiliato

  • Vincenzo Nicosia
    Collaboratore
Via Mendola, 41 90134 Palermo (PA)
Zona: Oreto-Policlinico-Bergamo-Perez-Sebastiano La Franca
Mostra su mappa
Affiliato
Oreto Policlinico Sas
Via Mendola, 41 90134 Palermo (PA)

2025 Tecnocasa Franchising S.p.A. - P. IVA 08365160152 - Via Monte Bianco 60/A 20089 Rozzano (MI). Ogni agenzia ha un proprio titolare ed è autonoma. Privacy policy | Policy utilizzo | Cookie policy