Trilocale in vendita

Palermo, Piazza Durante Francesco - Policlinico
€ 145.000
3 locali 3 locali
98 Mq 98 Mq
1 bagno 1 bagno

Trilocale in vendita

Palermo, Piazza Durante Francesco - Policlinico

Descrizione annuncio

Piazza Francesco Durante.

A meno di 200 mt dall’Azienda ospedaliera Policlinico “P. Giaccone”, in zona ben collegata dai mezzi di trasporto pubblici, quali autobus e stazione metro vespri e con ampia possibilità di posteggio.

L’area circostante è fornita di innumerevoli e svariate attività commerciali quali supermercati e piccoli commercianti, oltre a servizi utili al vivere quotidiano quali farmacie e scuole.

Lo stabile di costruzione fine anni ‘60 di sei piani complessivi, con parti condominiali curate; Il prospetto si presenta in buono stato, nell’androne è presente l’impianto di video sorveglianza ed è dotato di ascensore.

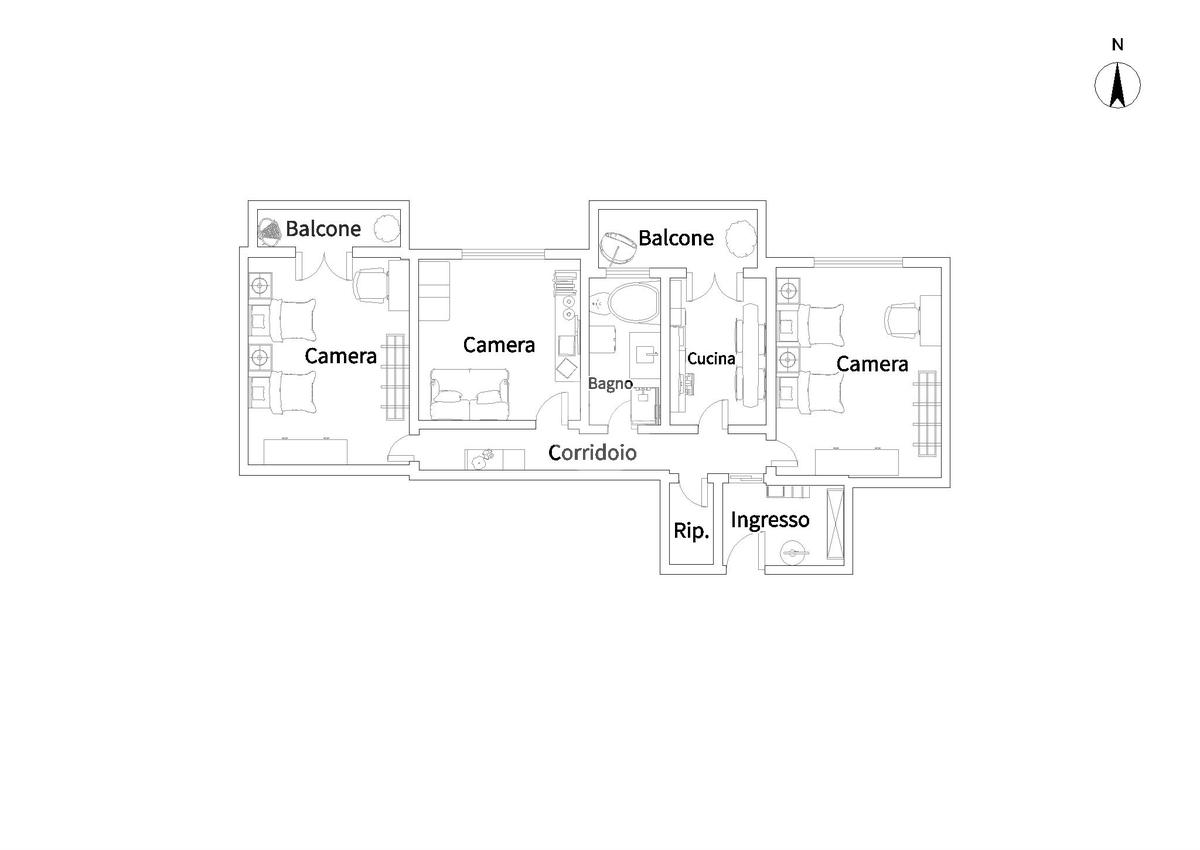
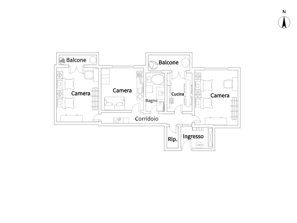
Nel cuore della località del Policlinico a Palermo, si propone in vendita un appartamento di 98 mq, situato al piano basso di un edificio dotato di ascensore.

La proprietà offre un'opportunità unica per chi cerca un investimento sicuro e redditizio.

La posizione strategica, proprio di fronte al Policlinico, rende l'immobile particolarmente interessante per chi desidera affittare a studenti o professionisti del settore medico.

L'appartamento è composto da tre camere di comode dimensioni, un bagno e due balconi che espongono su prospetto principale.

La disposizione interna è funzionale e ben organizzata, ideale per chi cerca spazi comodi e versatili.

Un'opportunità da non perdere per chi desidera investire in una zona ben servita e in continua crescita. Si presta anche per abitazione principale potendo rimodulare gli ambienti ristrutturando lo stesso in chiave moderna.

Attualmente locato uso transitorio fino a novembre.

Per poter visionare l'immobile è possibile tutti i giorni previo appuntamento telefonico allo 091.773.28.35 salvo diversi avvisi e comunicazioni:

Dal Lunedì al Venerdì con orario continuato dalle 09:00 alle 13:00 e dalle 16:00 alle 20:00 ed Il sabato dalle 09:00 alle 13:00.

Se vuoi ricevere maggiori informazioni e fissare un appuntamento, invia direttamente un messaggio su Whatsapp al seguente recapito: 327.891.55.61.

La nostra agenzia offre il servizio di mediazione creditizia attraverso Kìron qualora per l'acquisto doveste accedere ad un mutuo, un prestito od una cessione del quinto possiamo svolgere una consulenza in forma gratuita attraverso professionista del settore la quale dispone di oltre 20 istituti bancari sia locali che nazionali convenzionati.

Mostra tutto

Nelle vicinanze

Trasporto pubblico Trasporto pubblico
Palermo Centrale
Palermo Centrale
780 m
Palazzo Reale - Orleans
Palazzo Reale - Orleans
1,0 Km
Stazione Centrale
Stazione Centrale
890 m
Ingrassia
Ingrassia
910 m
La Franca - Durante
La Franca - Durante
70 m
Ricariche auto elettriche Ricariche auto elettriche
IONITY Basile Palermo
1,5 Km
T.F. Car Service Palermo | EnelX
3,0 Km
Scuole Scuole
Aula Enzo Nesci
90 m
Rosolino Pilo
140 m
Aula Maurizio Ascoli
150 m
Istituto di Medicina Legale e delle Assicurazioni
170 m
Istituto di Scienze Farmacologiche
210 m
Farmacia Farmacia
Farmacia
290 m
Farmacia Gallo
700 m
Farmacia
830 m
Parafarmacia Conad
860 m
Dott. Mancino
900 m
Ospedali Ospedali
Policlinico (Nuove aule)
200 m
Azienda Ospedaliera Universitaria Policlinico "Paolo Giaccone"
220 m
Ospedale Civico e Benefratelli "G. Di Cristina" e "M. Ascoli"
420 m
Ospedale Guadagna
900 m
Ospedale dei bambini "Giovanni Di Cristina"
920 m
Supermercati Supermercati
Conad
840 m
Lidl
1,1 Km
Mini Market
1,2 Km
Coop
1,2 Km
SISA supermercato
1,2 Km
Negozi Negozi
Panificio Figli Fiorentino
150 m
Angolo del Pane
760 m
Dolci Tentazioni
770 m
Negozi
810 m
Intimo e Corredo di Tiziana Quattrocchi
980 m
Bar Bar
Willy
200 m
Massaro
890 m
la Cueva
1,0 Km
Bar Accardi
1,1 Km
Moltivolti
1,1 Km
Ristoranti Ristoranti
Mensa
350 m
Da carlo
920 m
Al Vecchio Ristoro del Corso
1,0 Km
Spirro La Birroteca
1,1 Km
Al Fondaco del Conte
1,1 Km
Mostra tutto

Caratteristiche

Rif.:
61119180
Piano:
1 di 6 con ascensore (Piano basso)
Balconi:
2
Camere da letto:
3
Arredamento:
Assente
Condizionamento:
Autonomo
Mostra tutto
Prezzo Prezzo
€ 145.000
Rata mutuo Rata mutuo
€ 664 / mese
Spese annue Spese annue
€ 420
Proponi il tuo prezzoProponi il tuo prezzo

Classe Energetica

G
G
G
G
G
G
G
G
G
EP globale non rinnovabile:
150.00 kW h/m² anno
EP globale rinnovabile:
175.00 kW h/m² anno
EP invernale del fabbricato:
EP estiva del fabbricato:
Anno di costruzione:
1960
Riscaldamento:
Autonomo
Tipo impianto:
A pavimento
Tipo alimentazione:
Metano

Ti interessa visionare l'immobile?

Fissa un appuntamento  Fissa un appuntamento

Richiedi informazioni

* Questi campi sono obbligatori

Calcola il tuo mutuo

Semplice e senza impegno
Anticipo

( % )
Mutuo

( % )

pochi semplici passi

inserisci i tuoi dati
Questionario completato
Grazie per aver richiesto un appuntamento senza impegno con un nostro Consulente del Credito e Assicurativo.

Hai inserito correttamente tutti i dati necessari e a breve riceverai una e-mail con un link da convalidare per inviare i tuoi dati.
Affiliato
Oreto Policlinico Sas
Via Mendola, 41 90134 Palermo (PA)

Il nostro staff


  • Antonina Baglione
    Coordinatrice

  • Giuseppe Di Pisa
    Collaboratore

  • Gianluca Drago
    Collaboratore

  • Alex Amato
    Affiliato

  • Vincenzo Nicosia
    Collaboratore
Via Mendola, 41 90134 Palermo (PA)
Zona: Oreto-Policlinico-Bergamo-Perez-Sebastiano La Franca
Mostra su mappa
Affiliato
Oreto Policlinico Sas
Via Mendola, 41 90134 Palermo (PA)

2025 Tecnocasa Franchising S.p.A. - P. IVA 08365160152 - Via Monte Bianco 60/A 20089 Rozzano (MI). Ogni agenzia ha un proprio titolare ed è autonoma. Privacy policy | Policy utilizzo | Cookie policy