Bilocale in affitto

Palermo, Via la Franca Sebastiano - Policlinico
€ 600 / mese
Prezzo aggiornato
1 locale 1 locale
50 Mq 50 Mq
1 bagno 1 bagno

Bilocale in affitto

Palermo, Via la Franca Sebastiano - Policlinico

Descrizione annuncio

Via Sebastiano La Franca.

A meno di circa 500 m (circa 6 min. percorribili a piedi) dall’ Azienda Ospedaliera Universitaria Policlinico “Paolo Giaccone”, in zona ben servita da diverse attività commerciali utili al vivere quotidiano e fornita di innumerevoli servizi utili al vivere quotidiano (quali bar, farmacia, supermercato e piccoli commercianti) e servizi pubblici come fermate di bus e tram a pochi metri, ufficio postale e banche.

Lo stabile, di costruzione anni ’70, consta di otto elevazioni complessive, è ubicato nella zona residenziale a ridosso del Policlinico ed è dotato di ascensore. L’immobile è posto al 7° piano con esposizione sulla Via Sebastiano La Franca.

Il piano alto rende luminoso e panoramico l’immobile ed ogni ambiente è dotato di punto luce

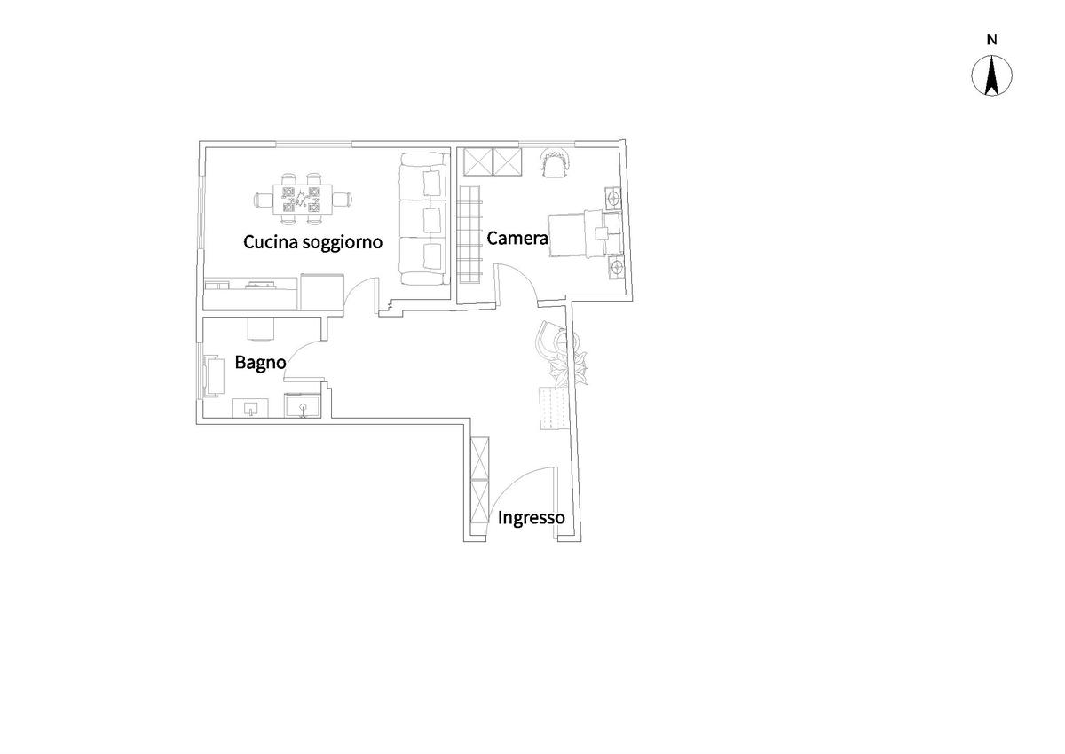
L’ingresso da porta blindata verte sulla saletta d’ingresso che conduce ad un piccolo disimpegno, dal quale si accede alla camera da letto matrimoniale, alla cucina abitabile di 16mq dotata di due punti luce ed al bagno con box doccia.

Internamente si presenta ristrutturato con impianti rifatti, la pavimentazione è unica in ceramica, gli infissi sono in alluminio e vetrocamera e le porte interne in legno.

Oggetto di recente ammodernamento è stato il bagno.

L’immobile è stato arredato in taglio moderno, la cucina è dotata di piastra ad induzione ed in ogni ambiente è presente la pompa di calore caldo/freddo.

Si loca uso transitorio solo a referenziati fuori sede.

Il canone di locazione ha incluso la spesa inerente alla fornitura elettrica; escluse sono le spese inerenti il condominio e l’utenza idrica conteggiata a bimestre in base al consumo.

Mostra tutto

Nelle vicinanze

Trasporto pubblico Trasporto pubblico
Palermo Centrale
Palermo Centrale
840 m
Palazzo Reale - Orleans
Palazzo Reale - Orleans
1,3 Km
Tiro a Segno
Tiro a Segno
870 m
Ingrassia
Ingrassia
880 m
Jemma
Jemma
200 m
Ricariche auto elettriche Ricariche auto elettriche
IONITY Basile Palermo
1,7 Km
T.F. Car Service Palermo | EnelX
2,8 Km
Scuole Scuole
Rosolino Pilo
180 m
Aula Enzo Nesci
330 m
Complesso Aule Nuove - Facoltà di Medicina e Chirurgia
370 m
Aula Maurizio Ascoli
400 m
Istituto di Medicina Legale e delle Assicurazioni
410 m
Farmacia Farmacia
Farmacia
530 m
Parafarmacia Conad
750 m
Farmacia Gallo
910 m
Roma
1,0 Km
Listro
1,0 Km
Ospedali Ospedali
Policlinico (Nuove aule)
390 m
Azienda Ospedaliera Universitaria Policlinico "Paolo Giaccone"
470 m
Ospedale Civico e Benefratelli "G. Di Cristina" e "M. Ascoli"
640 m
Ospedale Guadagna
730 m
Ospedale dei bambini "Giovanni Di Cristina"
1,2 Km
Supermercati Supermercati
Conad
740 m
Coop
1,1 Km
SISA supermercato
1,1 Km
Lidl
1,3 Km
Mini Market
1,3 Km
Negozi Negozi
Panificio Figli Fiorentino
240 m
Angolo del Pane
510 m
Negozi
970 m
Intimo e Corredo di Tiziana Quattrocchi
1,0 Km
Dolci Tentazioni
1,0 Km
Bar Bar
Willy
330 m
Massaro
1,1 Km
la Cueva
1,2 Km
Bar Accardi
1,3 Km
Moltivolti
1,3 Km
Ristoranti Ristoranti
Mensa
600 m
Al Vecchio Ristoro del Corso
1,1 Km
Da carlo
1,1 Km
Al Fondaco del Conte
1,3 Km
I Picciotti
1,3 Km
Mostra tutto

Caratteristiche

Rif.:
61160759
Piano:
7 di 8 con ascensore (Piano alto)
Camere da letto:
1
Arredamento:
Completo
Condizionamento:
Autonomo
Ascensore:
Mostra tutto
Prezzo Prezzo
€ 600 / mese
Spese annue Spese annue
€ 360

Classe Energetica

G
G
G
G
G
G
G
G
G
EP globale non rinnovabile:
150.00 kW h/m² anno
EP globale rinnovabile:
175.00 kW h/m² anno
EP invernale del fabbricato:
EP estiva del fabbricato:
Anno di costruzione:
1970
Riscaldamento:
Autonomo
Tipo impianto:
A radiatori
Tipo alimentazione:
Metano

Prezzo ridotto di €1 (8%%)

Ti interessa visionare l'immobile?

Fissa un appuntamento  Fissa un appuntamento

Richiedi informazioni

Clicca su Leggi per aprire l'informativa
* Questi campi sono obbligatori
Affiliato
Oreto Policlinico Sas
Via Mendola, 41 90134 Palermo (PA)

Il nostro staff


  • Antonina Baglione
    Coordinatrice

  • Giuseppe Di Pisa
    Collaboratore

  • Gianluca Drago
    Collaboratore

  • Alex Amato
    Affiliato

  • Vincenzo Nicosia
    Collaboratore
Via Mendola, 41 90134 Palermo (PA)
Zona: Oreto-Policlinico-Bergamo-Perez-Sebastiano La Franca
Mostra su mappa
Affiliato
Oreto Policlinico Sas
Via Mendola, 41 90134 Palermo (PA)

2026 Tecnocasa Franchising S.p.A. - P. IVA 08365160152 - Via Monte Bianco 60/A 20089 Rozzano (MI). Ogni agenzia ha un proprio titolare ed è autonoma. Privacy policy | Policy utilizzo | Cookie policy